NÄHE NASCHMARKT! BAUBEWILLIGTER DACHAUSBAU!
1060 Wien, Bauträgerprojekt, Dachausbau
In sehr begehrter Lage zwischen Naschmarkt und Mariahilfer Straße unweit des 1. Bezirks liegt diese Liegenschaft. Das Wohnhaus wurde 1894 in Massivbauweise errichtet und besteht aus einem Straßentrakt und einem Hoftrakt. Das zum Verkauf befindliche Projekt befindet sich im Hoftrakt. Ein Aufzug ist bereits vorhanden.
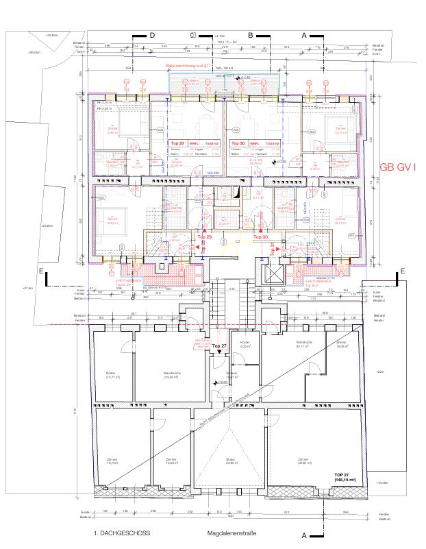
Geplantes Bauvorhaben:
- DG-Ausbau im Hoftrakt
- 4 Wohnungen geplant (2 Einheiten im 1. DG und 2 Einheiten im 1./2. DG)
- Insgesamt ca. 300m² Wohnnutzfläche zzgl. ca. 30,73m² Freiflächen erzielbar
- Flachdach ca. 97,15m² (begehbar für 2 Wohnungen)
- Aufzug bereits vorhanden
- Baubewilligung im Kaufpreis enthalten
Kaufpreis: Euro 900.000,00
Maklerhonorar: 3 % des Kaufpreises zzgl. 20 % MwSt.
Für weitere Fragen sowie zu Vereinbarung einer Besichtigung erreichen Sie mich jederzeit unter der Mobilnummer +43 650 3110002.
Obige Angaben basieren auf Informationen und Unterlagen des Eigentümers. Auf die gesetzliche Vorlage eines Energieausweises wurde der Eigentümer ausdrücklich hingewiesen. Der guten Ordnung halber möchten wir festhalten, dass im Falle eines Abschlusses mit Ihnen oder einem von Ihnen namhaft gemachten Dritten unser Honorar 3% des Kaufpreises zzgl. 20% MwSt. beträgt. Irrtum vorbehalten.
SIE BENÖTIGEN UNTERSTÜTZUNG BEI DER FINANZIERUNG IHRER TRAUMIMMOBILIE?
Unsere langjährigen Kooperationspartner arbeiten mit über 50 Bankinstituten zusammen, so können wir für Sie den BESTMÖGLICHEN ZINSSATZ mit der für Sie PERFEKTEN FINANZIERUNGSVARIANTE möglich machen (immer abhängig von Ihrer Bonität).
Bei Interesse freuen wir uns auf Ihre Kontaktaufnahme!
Details
Bauträgerprojekt, Dachausbau in 1060 Wien
- Kaufpreis: € 900.000,00
- DG-Ausbau im Hoftrakt
- 4 Wohnungen geplant
- Wohnnutzfläche: ca. 300m2
- Freiflächen: ca. 30,73m2
- Flachdach ca. 97,15m²
- Aufzug bereits vorhanden
- Baubewilligung im Kaufpreis enthalten

Dejan Stanisavljevic
